Окрасочно-сушильная камера WDK-3010
- По России: БЕСПЛАТНО до терминала отправления ТК (*далее по тарифам ТК) RUB
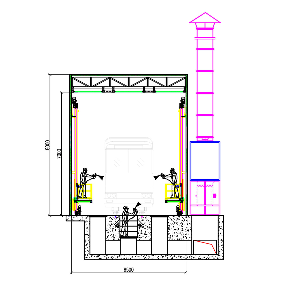
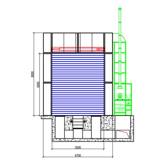
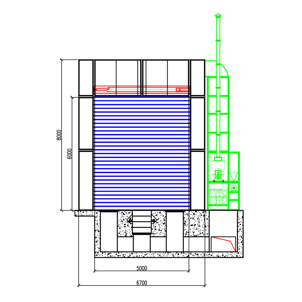
WDK-3010 - это окрасочно-сушильная камера для железнодорожного транспорта с дизельной горелкой Riello и приточно-вытяжным тепловентиляционным агрегатом. Используется для сушки лакокрасочных покрытий и организации технологических процессов окраски. Боковые стены состоят из сэндвич-панелей (негорючий пенополистирол толщиной 70 мм) и являются теплоизоляционными. Визуальный контроль позволяют осуществить 3-х створчатые ворота со встроенными смотровыми окнами. Можно установить дополнительный комплект ворот с целью организации сквозного проезда. Установить приточно-вытяжную группу с любой стороны в процессе монтажа позволяет унифицированная конструкция.
Встроенная трехступенчатая система фильтрации воздуха с угольной очисткой дает возможность очистить воздух от пыли и примесей на 95%. Камера оснащена верхним наклонным освещением на 8 светильников и боковым вертикальным освещением на 8 светильников.
Широкий выбор различных оснований для быстрого и удобного монтажа в любых помещениях со сложными участками позволяет оптимизировать воздушные потоки для любых технологических процессов окраски, продувки и сушки. Пульт управления расположен на внешней стороне стены и может устанавливаться в любом удобном месте.
Особенности и преимущества:
- Кабина адаптирована под покраску железнодорожного транспорта.
- Подходит для машиностроительных производств, окраски крупногабаритных деталей.
- Предусмотрена возможность установки грузовой тележки на рельсовом или ином ходу.
- Возможна установка подъемно-лифтовых систем для персонала.
- Дополнительная угольная система фильтрации для снижения уровня выбросов сольвентов.
- Шиберные заслонки регулировки воздушного потока.
- Двухрегистровые теплообменники c повышенным КПД и увеличенным сроком службы, из жаростойкой нержавеющей стали, устойчивой к высоким температурам и открытому огню.
Германия -
родина бренда
Китай -
страна производитель


